• Наличие
    В наличии
Цена по запросу

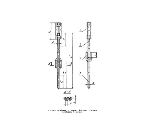
Тяги шарнирные резьбовые с муфтой предназначены для надежного крепления и подвешивания трубопроводов, обеспечивая их стабильное положение и компенсируя тепловые расширения. Эти элементы являются ключевыми в сборке современных трубопроводных систем промышленного назначения.

Использование тяг позволяет равномерно распределить нагрузку, значительно повысить безопасность и долговечность всей конструкции. Они незаменимы на объектах энергетики, нефтегазовой и химической промышленности, где предъявляются высокие требования к надежности.

Изделия изготавливаются из высокопрочных марок стали (09Г2С, 12Х18Н10Т, 15Х5М, 20Х1М1Ф1ТР, сталь 20, сталь 3), что гарантирует стойкость к коррозии, механическим нагрузкам и высоким температурам. Доступны с различными допусками нагрузки: от 15 кН до 150 кН.

Мы предлагаем широкий выбор типоразмеров под любой проект: диаметры от 16 мм до 48 мм. Оформите онлайн-заказ или запросите коммерческое предложение для юридических лиц с безналичным расчетом. Доставка по всей Беларуси.

Отзывов: 0

Нет отзывов об этом товаре.

Вопросов: 0

Пока нет вопросов об этом товаре. Станьте первым!